Proponiamo in vendita, in zona Promano, una splendida Villetta Singola circondata da un giardino privato, ideale per chi cerca spazio, comfort e privacy.
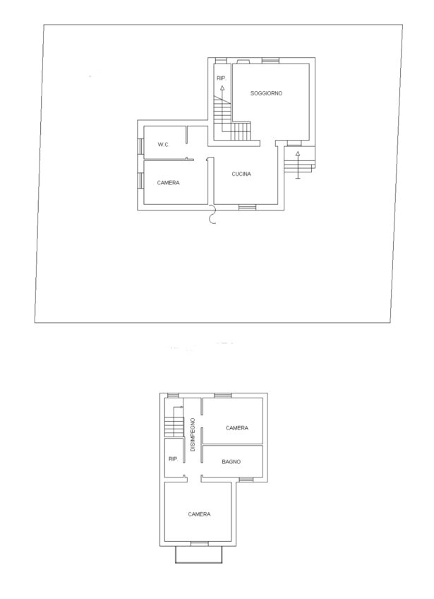
Gli ambienti si sviluppano in modo da garantire spazi ampi e confortevoli: al piano terra vi accoglie un ampio soggiorno con camino a pellets, una cucina abitabile, una camera e un bagno con doccia, salendo al primo piano troviamo due camere matrimoniali, di cui una con balcone, e un secondo bagno con vasca.
La proprietà, completamente recintata, dispone di un giardino privato di circa mq 350 che circonda l’intera abitazione, perfetto per pranzi, cene o momenti di relax all’aperto.
Una soluzione pronta da vivere, elegante e funzionale. La cucina è compresa nel prezzo di vendita, rappresentando un ulteriore valore aggiunto.



























