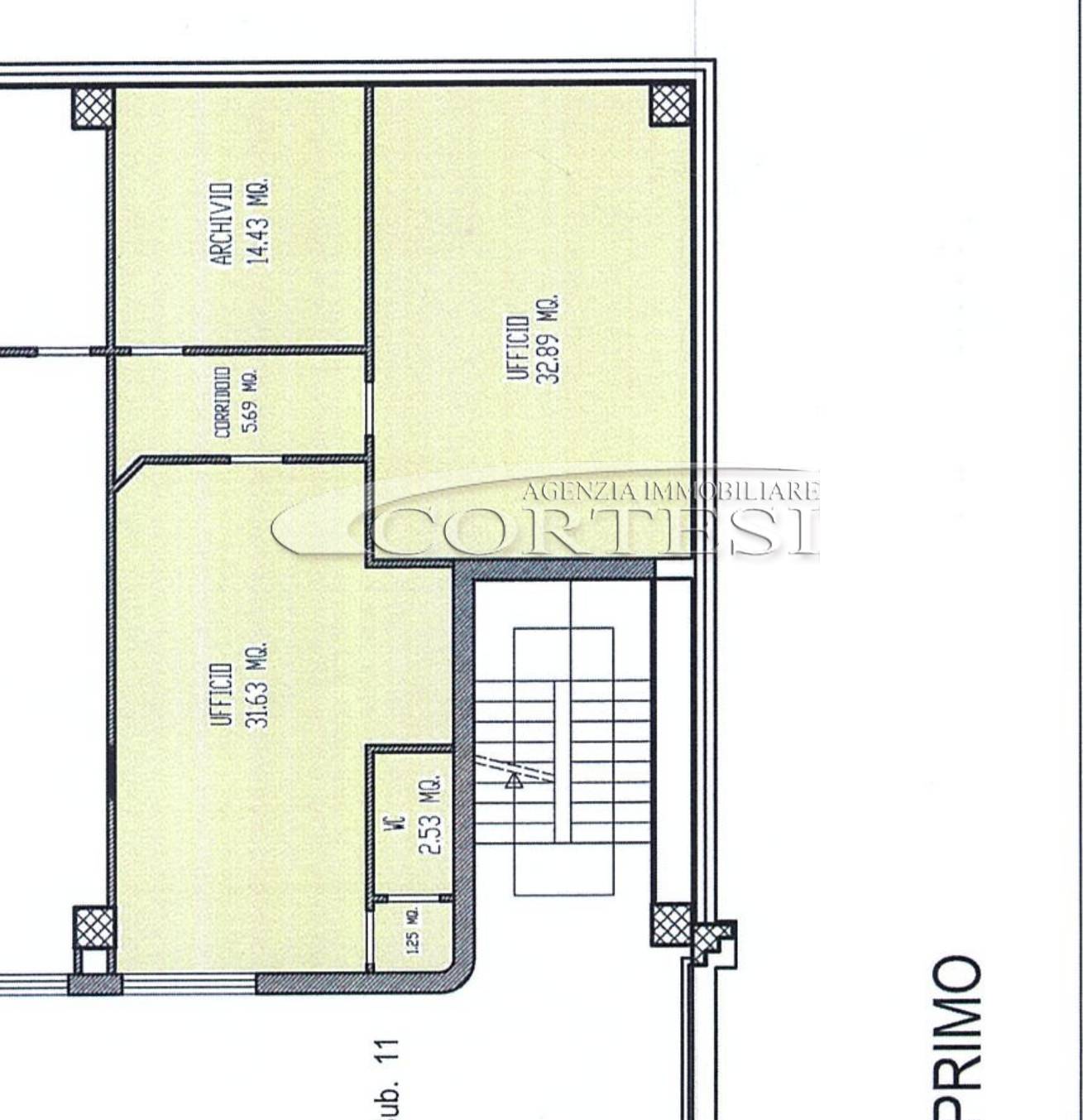
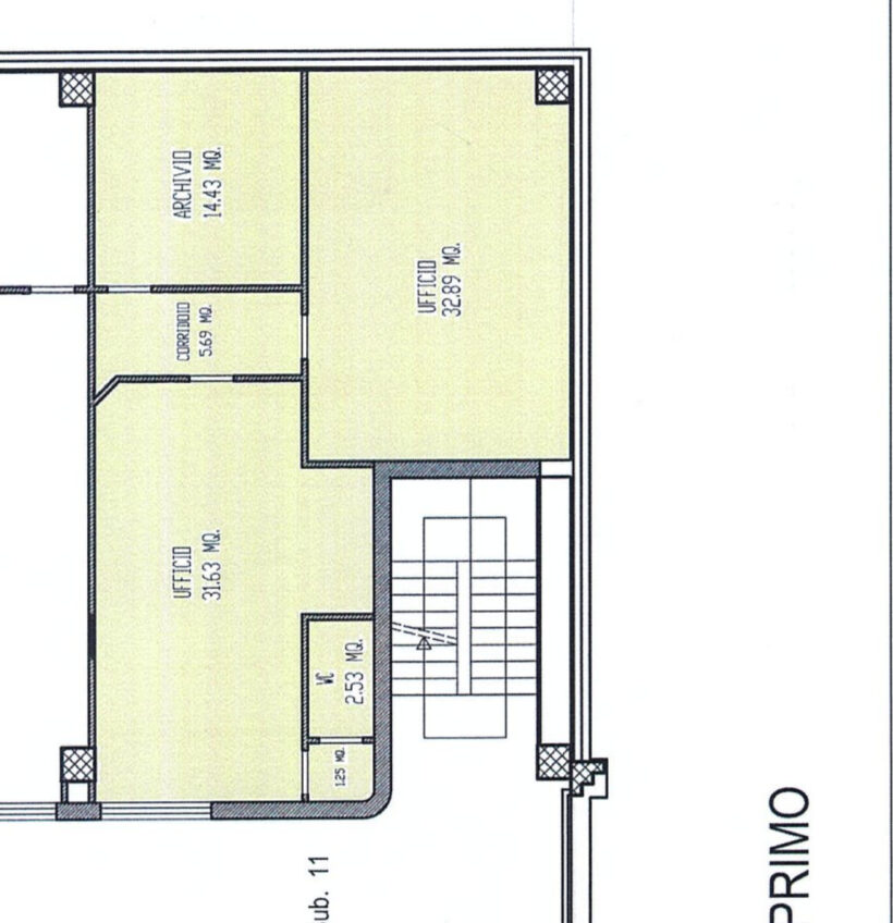
Ufficio di 100 mq situato al primo piano, ideale per professionisti e studi associati.
L’immobile si presenta molto luminoso ed è composto da un ampio ufficio utilizzabile anche come sala d’attesa/front office, bagno con antibagno, disimpegno, e due ulteriori uffici separati, perfetti per garantire funzionalità e privacy agli ambienti di lavoro.
L’ufficio viene locato completo dell’arredo, pronto per essere utilizzato fin da subito senza necessità di ulteriori investimenti.
La posizione è centralissima e strategica, comoda a tutti i principali servizi, aziende e negozi, garantendo visibilità e facilità di accesso sia per clienti che collaboratori.
Soluzione ideale per chi cerca uno spazio professionale ben organizzato, luminoso e in una zona di forte passaggio.













