Terra-tetto con ingresso indipendente di mq 80 con Giardino. Zona Pam- Sansepolcro.


Sansepolcro - Zona Zona Pam

€ 110.000

B/149
Riferimento

Descrizione

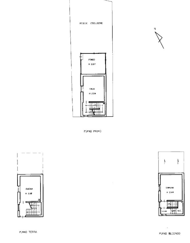
Terra-tetto con ingresso indipendente di mq 80. Composto da: piano terra si trova un salotto accogliente con camino. Salendo al primo piano, lungo le scale è stata realizzata una pratica armadiatura a muro e sul pianerottolo è posizionata una stufa a pellet che riscalda bene la zona. Sempre su questo livello c’è una cucina abitabile, spaziosa. Proseguendo al piano superiore troviamo una camera matrimoniale e un bagno con finestra. All’esterno la proprietà dispone di un giardino esclusivo e di un fondo attualmente utilizzato come lavanderia.

Panoramica

  • Rif: B/149
  • Prezzo: € 110.000
  • Stato: Abitabile
  • Tipologia: Appartamenti, Cielo-Terra, Porzioni di casa
  • Dimensioni: 80 mq
  • Vani: 4
  • Locali: 3
  • Camere: 1
  • Bagni: 1
  • Arredato

Caratteristiche

  • Livelli: 3
  • Ingresso indipendente ✔
  • Taverna ✔
  • Fondo di 9mq ✔
  • Cantina ✔
  • Giardino privato di 10mq ✔
  • Terreno di 10mq ✔
  • Impianto TV: Centralizzato
  • Canna fumaria ✔
  • Fibra ottica ✔
  • Porta blindata ✔
  • Esposizione esterna ✔

Caratteristiche energetiche

  • Riscaldamento: Autonomo
  • Impianto: A radiatori, Metano
  • Impianto aria condizionata: Assente
  • Classe energetica: G

Documentazione

Documenti

Mappa della zona

Richiedi informazioni

Terra-tetto con ingresso indipendente di mq 80 con Giardino. Zona Pam- Sansepolcro.

Terra-tetto con ingresso indipendente di 80 mq. Al piano terra salotto con camino; al primo piano armadiatura a muro lungo le scale, stufa a pellet sul pianerottolo e cucina abitabile. Al piano superiore camera matrimoniale e bagno con finestra. La proprietà comprende giardino esclusivo e fondo adibito a lavanderia.

€ 110.000
Rif. B/149 APE “G”