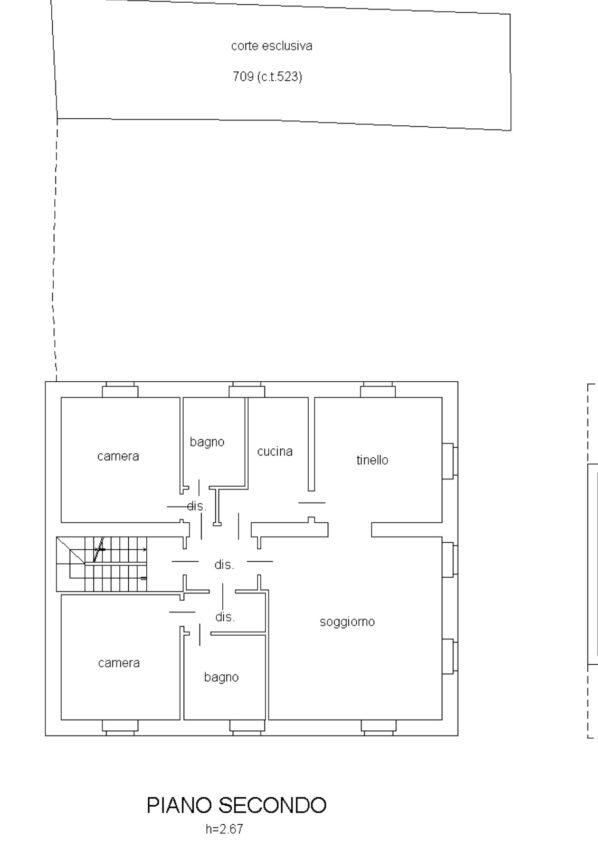
Porzione di casa indipendente, parzialmente ristrutturata, di circa 225 mq, suddivisa in due appartamenti indipendenti. Al piano terra: soggiorno, cucina abitabile, zona pranzo e ripostiglio. Al primo piano: due camere matrimoniali, cameretta/studio e bagno. Al secondo appartamento, disposto su due livelli: soggiorno, cucina abitabile, due camere matrimoniali, due bagni, soffitta e ampio terrazzo abitabile al piano terzo. Completano la proprietà giardino e scoperto privato ad uso esclusivo. L’immobile si presenta in buone condizioni, con ottime finiture. Soluzione ideale per due nuclei familiari o per chi cerca casa e investimento in un’unica soluzione.



























































































