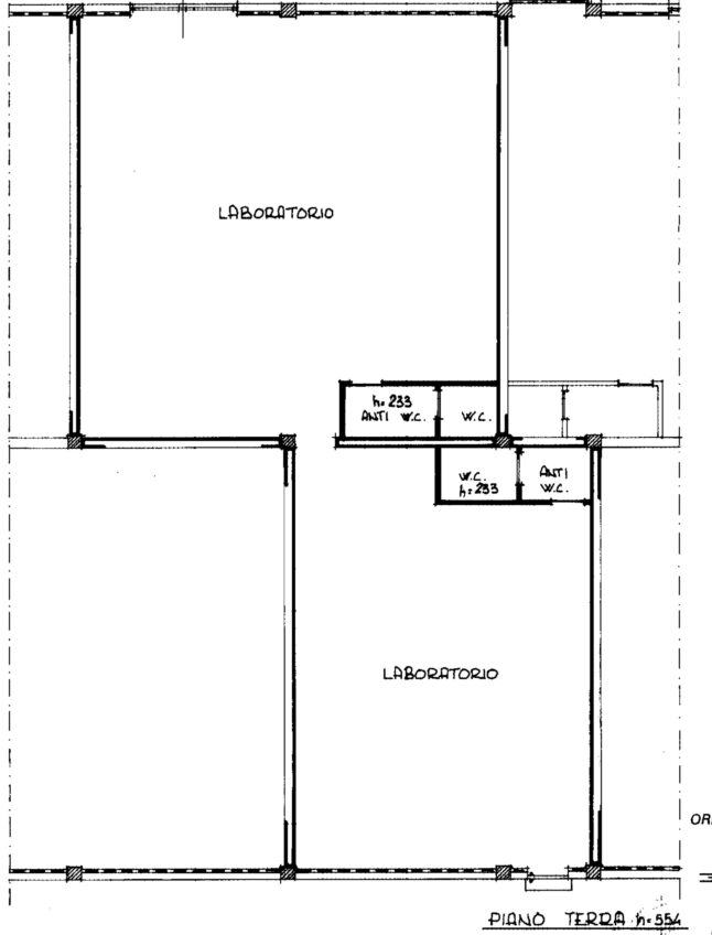
Magazzino di circa 160 mq ad uso industriale composto da un ampio padiglione principale, caratterizzato da un unico grande vano open space che consente massima versatilità di utilizzo per attività di deposito, logistica o lavorazioni artigianali.
L’immobile è dotato di un’ampia porta d’ingresso che agevola le operazioni di carico e scarico merci e l’accesso anche con mezzi di dimensioni importanti. All’interno del corpo principale sono presenti bagno e antibagno a servizio dell’area operativa.
A completare la proprietà vi è un secondo vano separato, ideale come ufficio amministrativo o spazio direzionale, anch’esso dotato di bagno dedicato, soluzione che permette di organizzare in modo funzionale sia la parte operativa che quella gestionale.
La presenza di lucernari garantisce un’ottima illuminazione naturale durante tutta la giornata, migliorando il comfort degli ambienti e riducendo i consumi energetici. Antistante l’ingresso è disponibile un’area parcheggio comoda per dipendenti, clienti e fornitori.
Soluzione funzionale e ben distribuita, adatta ad attività industriali, artigianali o logistiche che necessitano di spazi ampi e facilmente accessibili. Per ulteriori informazioni o per organizzare una visita siamo a disposizione.

















