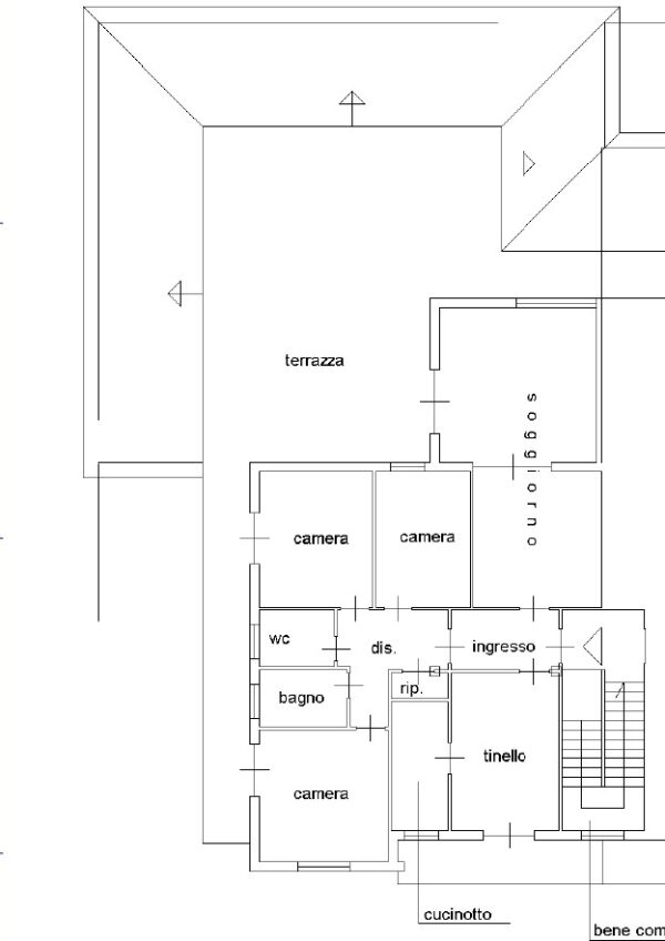
In vendita complesso immobiliare composto da due appartamenti di circa 175 mq ciascuno e da un capannone di circa 600 mq al piano terra. Ciascun appartamento, posto al primo piano, è composto da ampio ingresso, cucina abitabile con balcone, grande soggiorno di circa 40 mq con camino e accesso diretto a terrazzo abitabile di circa 20 mq con vista sul centro storico di Anghiari. La zona notte comprende tre camere matrimoniali, due bagni entrambi finestrati di cui uno con vasca idromassaggio oltre a un comodo ripostiglio. Le due unità hanno la stessa distribuzione interna e si differenziano solo per la pavimentazione: gres porcellanato in un appartamento e parquet nell’altro. Gli immobili sono stati completamente ristrutturati e dispongono di impianti nuovi, tetto rifatto, infissi a triplo vetro e cappotto termico esterno. Completano la proprietà un giardino di circa 1.000 mq, pianeggiante e piantumato con grandi alberi, e il capannone sottostante di circa 600 mq, adatto a diverse destinazioni d’uso.
La soluzione si presta a più utilizzi: ideale per due nuclei familiari, per chi desidera unire abitazione e attività nello stesso luogo, oppure come investimento da destinare ad affitti residenziali e commerciali.
I proprietari valutano la vendita del solo capannone oppure dell’intero complesso immobiliare.



































