Nel cuore di un borgo storico, immerso in un contesto tranquillo e collinare, proponiamo in vendita un elegante cielo-terra ristrutturato, libero su più lati e dotato di ingresso indipendente.
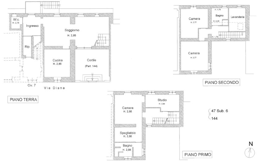
La residenza, di complessivi 300 mq, si distingue per la cura dei dettagli e le ottime finiture che ne esaltano l’eleganza e la funzionalità. Al piano terra si apre un ampio soggiorno luminoso con accesso diretto allo scoperto privato, una cucina abitabile, un bagno e un ripostiglio.
Al primo piano troviamo due camere matrimoniali, uno studio accogliente e un bagno raffinato, mentre il secondo piano ospita ulteriori due camere matrimoniali, una comoda lavanderia e un terzo bagno.
Completano la proprietà un ampio spazio esterno privato, perfetto per momenti di relax e convivialità, e un garage esclusivo.
Una dimora dal carattere autentico, capace di unire storia, eleganza e comfort moderno, ideale per chi desidera vivere in un contesto riservato e suggestivo.
Prezzo trattabile.












































