In splendida zona collinare panoramica, immerso nella quiete e nei colori autentici della campagna umbra, proponiamo in vendita elegante casale in pietra di circa 350 mq, libero su quattro lati, con ingresso indipendente e disposto su tre livelli.
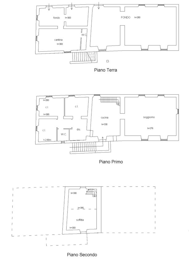
L’abitazione principale si sviluppa al primo piano ed è composta da cucina abitabile con camino, ampio e luminoso soggiorno, tre camere da letto e bagno.
Dalla cucina, una scala conduce alla caratteristica torretta panoramica, dalla quale si gode una vista mozzafiato sulle dolci colline e sui paesaggi umbri circostanti.
Al piano terra troviamo fondi, cantina e bagno, ambienti che offrono la possibilità di realizzare un secondo appartamento indipendente, ideale per ospiti o per uso ricettivo.
Completano la proprietà tre annessi, precedentemente adibiti a stalle, con possibilità di recupero e trasformazione in dependance, oltre a un ampio terreno di circa 3,5 ettari in parte coltivato a vigneto e oliveto.
Soluzione ideale sia come prestigiosa residenza privata sia come attività ricettiva, grazie alla posizione panoramica, alla privacy e all’ampio potenziale di sviluppo.






























