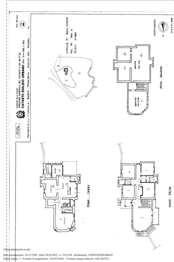
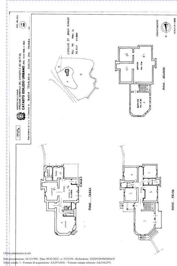
Casa singola padronale libera su quattro lati, situata nelle tranquille campagne di Badia Tedalda, completamente recintata e abitabile da subito. L’immobile ha ingresso al piano primo ed è composto da ampio soggiorno con camino e angolo cottura, quattro camere matrimoniali, due bagni e balcone. Al piano secondo, mansarda abitabile con angolo cottura, camera matrimoniale, cameretta e bagno. Al piano terra si trovano una taverna con cucina e camino, bagno, soffitta, fondi, garage e un giardino privato recintato di circa 1.000 mq. Possibilità di suddividere l’immobile in tre unità abitative. Ottima soluzione per famiglie numerose o per struttura ricettiva.










































