Casa Singola sviluppata su tre livelli, in posizione panoramica e tranquilla, composta da due unità abitative indipendenti, oltre ad una mansarda abitabile e giardino privato completamente recintato con garage ed annesso.
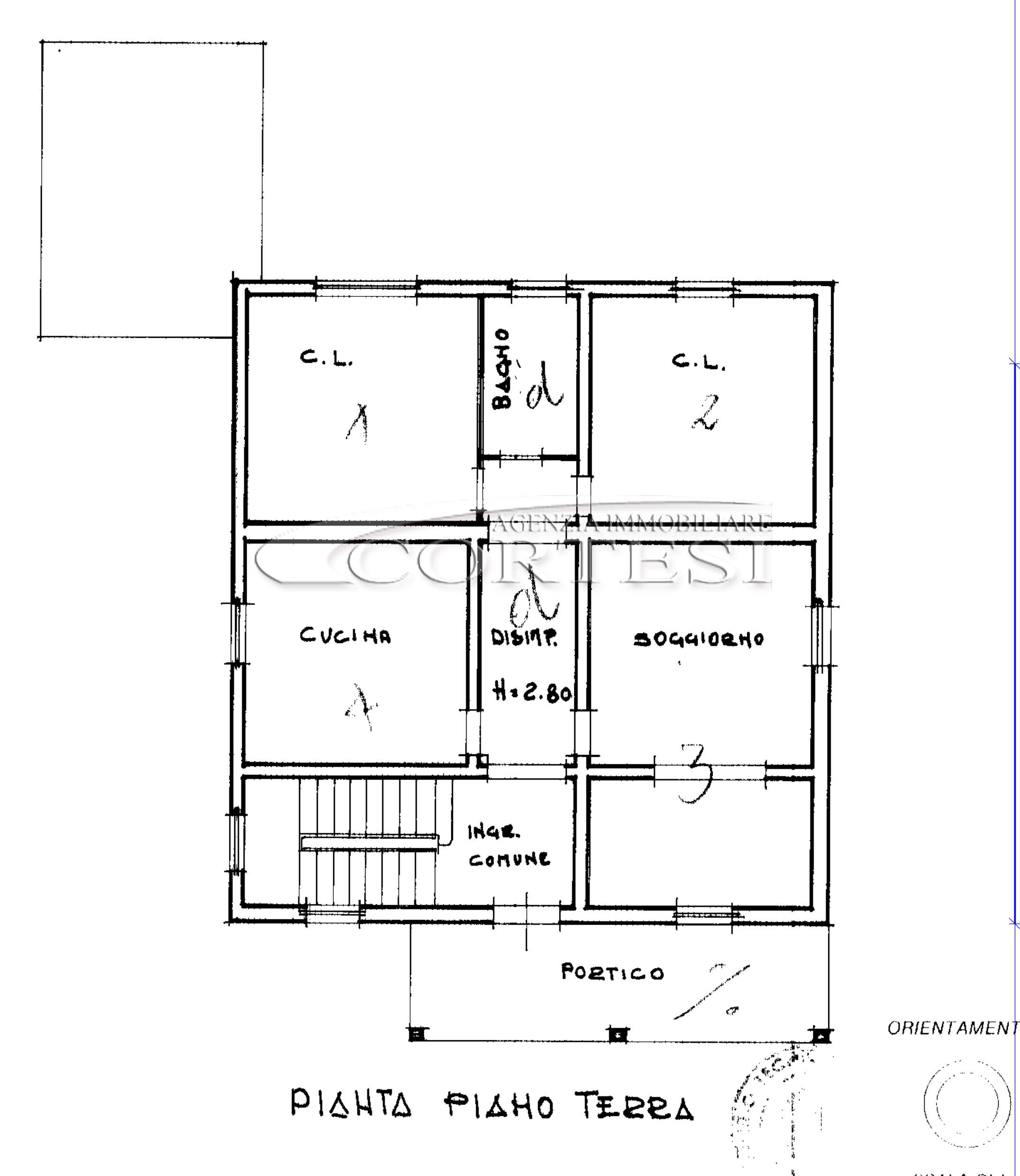
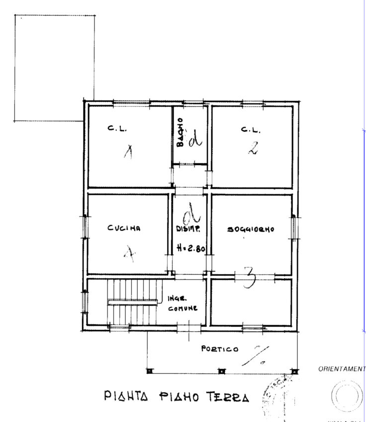
Al Piano Terra troviamo l’ingresso comune ai due appartamenti. Il primo appartamento anch’esso a Piano Terra , è stato ristrutturato nelle finiture ed negli impianti ed è composto da un ampia zona giorno con soggiorno e sala da pranzo, una grande cucina abitabile con camino, due camere matrimoniali ed un bagno finestrato.
Al Primo Piano si sviluppa il secondo appartamento con impianti rinnovati negli anni ’90 e impianto idraulico della cucina rifatto, composto da ingresso, cucina abitabile con accesso a terrazzo panoramico di circa 30 mq, sala da pranzo con camino, una camera matrimoniale ed una doppia. Una scala interna conduce alla mansarda abitabile, dove troviamo un ampio vano open-space con mobilio su misura nella parte bassa, un bagno finestrato recentemente ristrutturato con doccia idromassaggio ed un balcone con vista aperta sul paesaggio circostante.
Completa la proprietà un garage, un annesso esterno ed un giardino esclusivo recintato.
L’immobile è dotato di impianto fotovoltaico da 4 kw, due pannelli solari con boiler per acqua calda da 800 litri e predisposizione per stufa a pellet in entrambi gli appartamenti.
Soluzione ideale sia per chi desidera vivere in un’abitazione funzionale con ampi spazi sia per due nuclei familiari.




























