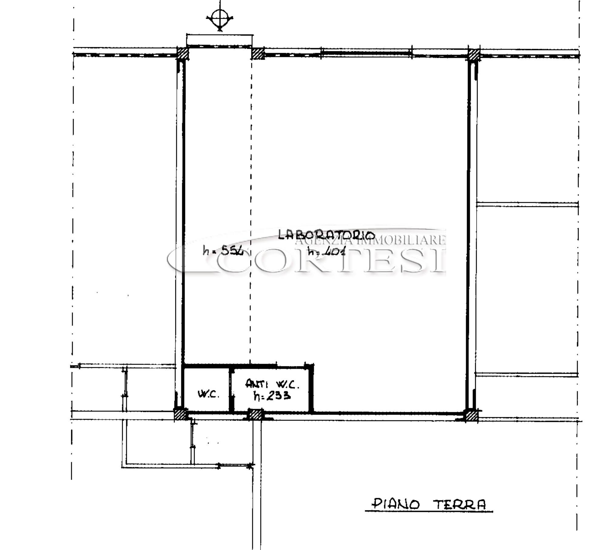
Capannone al piano terra composto da un unico ampio ambiente open space, soluzione ideale per attività artigianali, laboratorio, deposito o piccola attività produttiva.
L’immobile si presenta con un’ampia porta d’ingresso che facilita le operazioni di carico e scarico, rendendo lo spazio particolarmente funzionale anche per mezzi e attrezzature. Internamente il locale è ben sfruttabile grazie alla pianta regolare che consente massima libertà di organizzazione degli spazi in base alle esigenze operative.
L’impianto elettrico è dotato di prese industriali, caratteristica fondamentale per chi necessita di alimentare macchinari o attrezzature specifiche, offrendo quindi una soluzione già predisposta per attività tecniche o produttive.
Completa la proprietà la comoda area parcheggio antistante, che garantisce facilità di accesso sia per clienti che per fornitori.
Soluzione pratica e versatile, pronta per essere adattata a diverse tipologie di utilizzo professionale. Per maggiori informazioni o per fissare una visita restiamo a disposizione.
















