Appartamento in quadrifamiliare con BONUS 110% già realizzato.
In posizione centrale, tranquilla e riservata, appartamento in quadrifamiliare, posto al piano rialzato, che unisce ampi spazi interni alla qualità e al risparmio energetico garantiti dai recenti lavori di ristrutturazione effettuati con il Bonus 110% già ultimato.
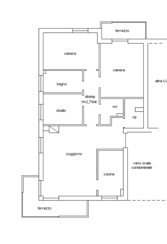
L’appartamento si compone di un ampio soggiorno con camino ventilato su zona giorno e accesso diretto a un comodo terrazzo, una cucina abitabile, due camere matrimoniali, di cui una con terrazzo, una terza camera versatile (ideale come studio o cameretta) e due bagni, uno principale con vasca e uno secondario con doccia.
A completare la proprietà, un garage spazioso di circa 40 mq.
Interventi effettuati con Bonus 110%:
- 
Cappotto termico 
- 
Sostituzione infissi interni ed esterni 
- 
Caldaia nuova 
- 
Rifacimento completo dei balconi 
- Portone blindato
L’appartamento è abitabile da subito, soluzione ideale per chi cerca una casa già pronta.
 
				 
								 
													

























 
     
    
     
								 
								 
								 
								 
								 
								 
								 
								 
								 
								 
								 
								