In comodo contesto residenziale, proponiamo in vendita un appartamento signorile di ampia metratura, situato al primo piano di una palazzina libera su tre lati.
L’immobile, che si sviluppa su una superficie complessiva di circa 220 mq, offre ambienti spaziosi, luminosi e funzionali, ideali per famiglie numerose.
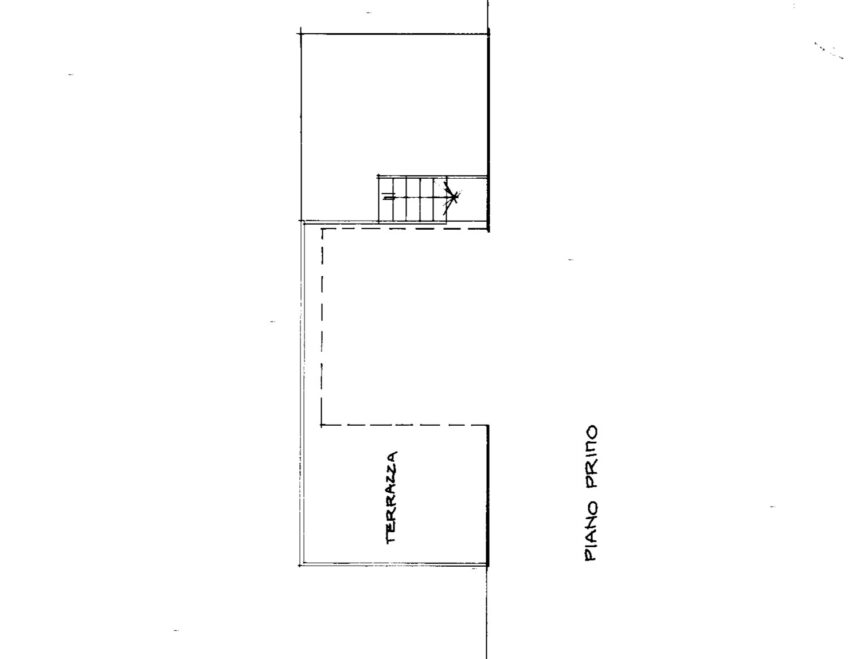
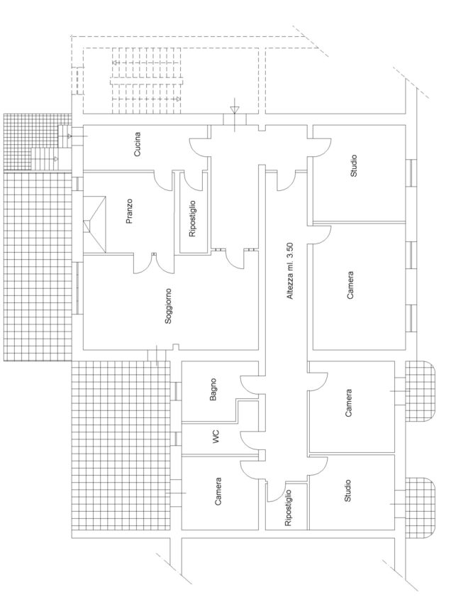
L’appartamento è composto da: cucina abitabile, sala da pranzo con camino, ampio soggiorno, quattro camere da letto (di cui tre matrimoniali), studio, ripostiglio e due bagni finestrati – uno con vasca e l’altro con doccia. Presenti anche due balconi e tre ampi terrazzi, perfetti per godersi momenti all’aperto con affaccio sul giardino condominiale.
Completano la proprietà un posto auto scoperto privato e la vicinanza a tutti i principali servizi: scuole, mezzi pubblici, supermercati e attività commerciali. L’immobile rappresenta una soluzione abitativa ideale per chi cerca spazi generosi, comfort e tranquillità, senza rinunciare alla comodità del centro.

































