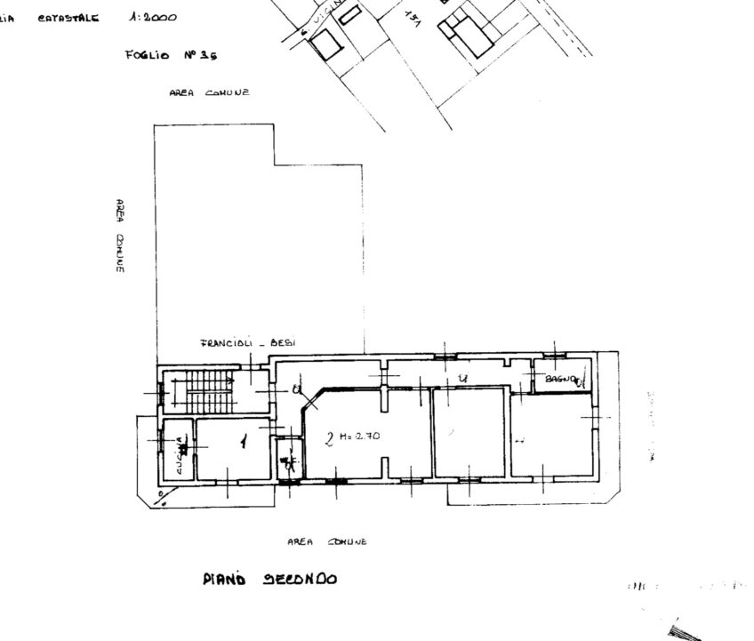
Appartamento posto al secondo piano di una palazzina con ingresso a sei unità, della superficie di circa 110 mq, sviluppato interamente su un unico livello. L’immobile è composto da soggiorno, cucina separata e zona pranzo, con ambienti ben distinti e funzionali per la vita quotidiana. La zona notte comprende tre camere matrimoniali, adatte a famiglie o a chi desidera spazi ampi, e due bagni che garantiscono comodità e praticità. Sono presenti balconi che offrono sfoghi esterni e una buona luminosità agli ambienti interni. Completa la proprietà un fondo al piano seminterrato, utile come spazio di deposito. Soluzione interessante per chi cerca un appartamento spazioso in contesto condominiale ordinato.

















































