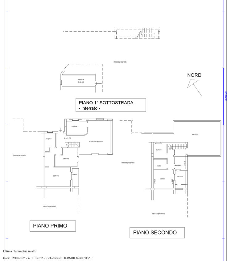
In contesto residenziale tranquillo e ben servito, proponiamo in vendita appartamento di recente costruzione con ingresso indipendente, posto al primo piano, con ampie metrature e spazi esterni vivibili.
L’immobile si sviluppa su circa 130 mq ed è composto da: ingresso, ampio soggiorno con camino, cucina abitabile, due camere da letto, un bagno e terrazzo al piano. Al livello superiore si trovano uno studio, una terza camera da letto con terrazzo privato, secondo bagno, lavanderia e un grande terrazzo panoramico, ideale per cene all’aperto e momenti di relax.
La proprietà è stata recentemente riqualificata con interventi del Superbonus 110%, che includono:
-
Cappotto termico
-
Nuovi infissi ad alta efficienza
-
Caldaia a condensazione di ultima generazione
-
Impianto fotovoltaico
-
Colonnina per ricarica auto elettrica
Completano l’offerta un garage privato e una cantina al piano seminterrato.






























