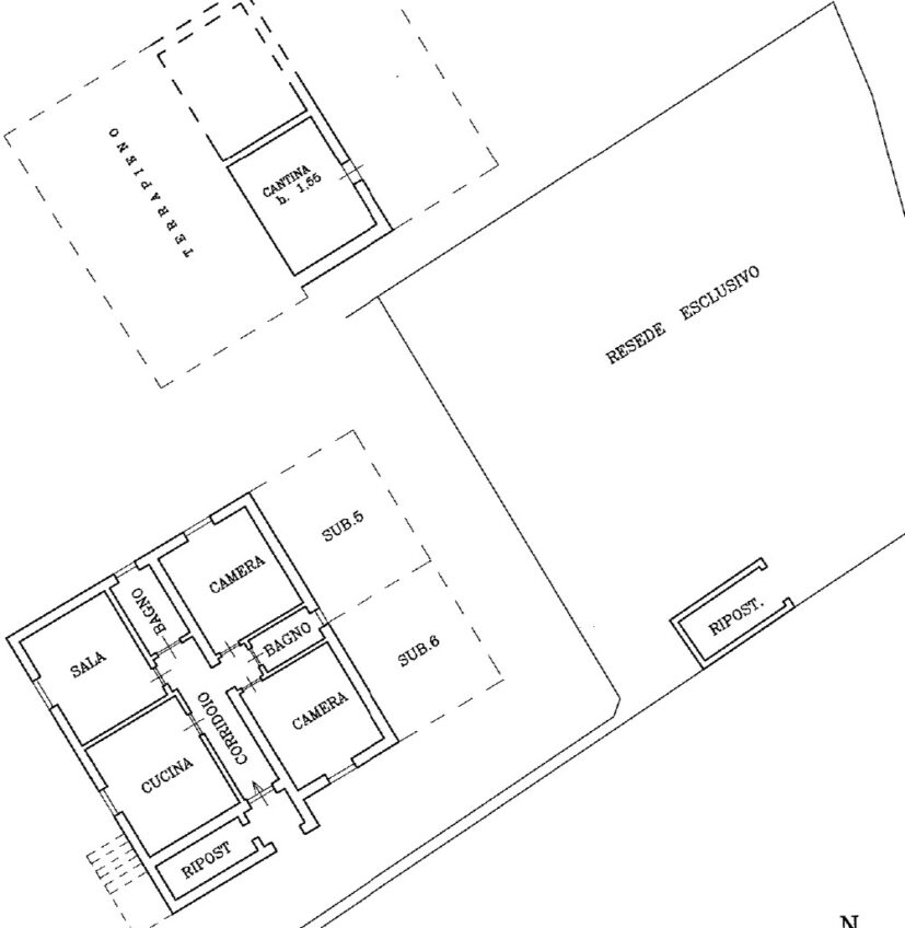
Appartamento di circa 130 mq posto al piano terra di una bifamiliare, con ingresso indipendente e sviluppato su un unico livello.
L’ingresso conduce a un ampio disimpegno dal quale si accede alla cucina abitabile, collegata da un arco al salotto con camino. È presente anche un secondo cucinotto dotato di stufa a legna. La zona notte comprende due camere matrimoniali, un bagno finestrato e un ripostiglio.
Completano la proprietà un giardino privato di circa 400 mq e un garage di circa 20 mq.
Soluzione ideale per chi desidera vivere in un contesto tranquillo e verde, senza rinunciare alla comodità dei servizi vicini e alla bellezza del borgo di Anghiari.























