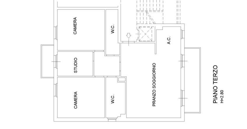
In zona residenziale tranquilla e ben servita, a due passi da scuole, negozi e mezzi pubblici, proponiamo in vendita ampio appartamento di 100 mq, posto al terzo piano con ascensore di una palazzina ben tenuta, libero su tre lati e dotato di buona esposizione.
L’immobile si compone di un ampio soggiorno, angolo cottura, tre camere da letto (di cui due matrimoniali) oltre a due bagni recentemente ristrutturati, uno dei quali dotato di doccia idromassaggio. Completano la proprietà due balconi, entrambi con tende da sole elettriche, ideali per godere di momenti di relax all’aperto.
Al piano seminterrato si trova un comodo box auto, compreso nel prezzo.
Possibilità di realizzare canna fumaria.
Soluzione ideale per famiglie o per chi desidera vivere in una zona comoda e ben collegata, senza rinunciare alla tranquillità.






































