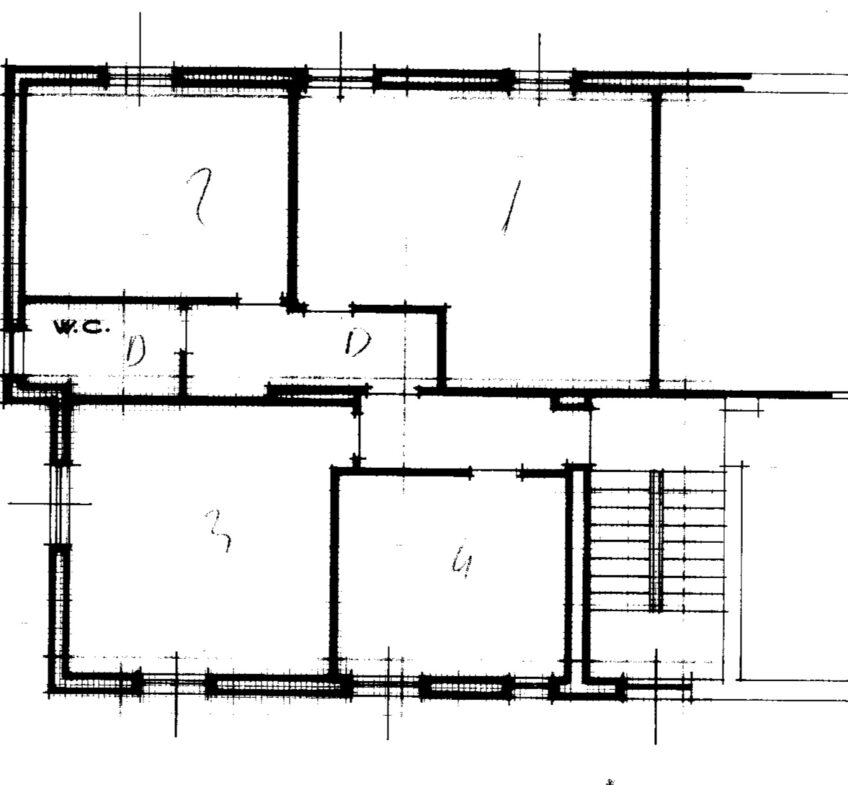
In piccolo e tranquillo condominio proponiamo in vendita appartamento di circa 100 mq, libero su tre lati, caratterizzato da ottima luminosità e spazi ben distribuiti.
L’immobile si compone di ingresso accogliente, ampio soggiorno con camino, cucina abitabile, tre camere da letto di cui due matrimoniali, oltre a bagno finestrato.
La tripla esposizione garantisce luce naturale durante tutto l’arco della giornata e una piacevole ventilazione degli ambienti.
Situato in zona collinare e panoramica, l’appartamento rappresenta la soluzione ideale per chi desidera vivere in un contesto tranquillo, immerso nel verde, senza rinunciare alla comodità dei servizi principali.
Ottima soluzione per famiglie o per chi è alla ricerca di spazi confortevoli e ben organizzati.



























