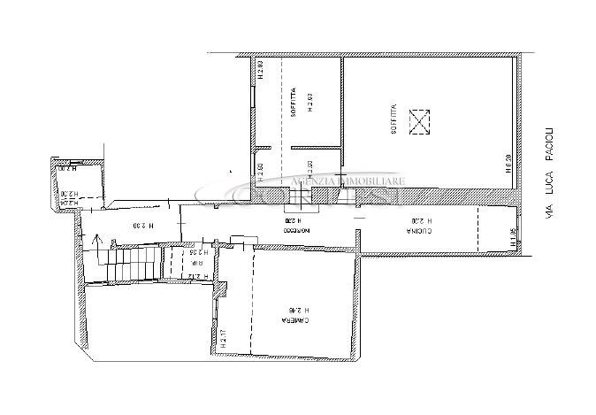
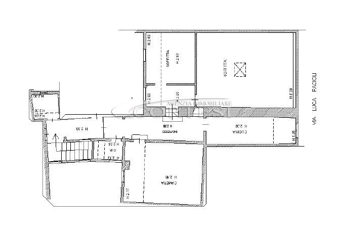
Appartamento situato nel cuore del centro storico di Sansepolcro, distribuito su un unico livello di circa 90 mq e posto al terzo piano di una palazzina. L’immobile si compone di una cucina abitabile, funzionale e luminosa, ideale per chi ama vivere gli spazi della casa in modo conviviale, due ampie camere matrimoniali, entrambe spaziose e accoglienti, ed un pratico ripostiglio molto utile per l’organizzazione della vita quotidiana. A completare la proprietà troviamo inoltre un ulteriore ambiente mansardato, caratterizzato da splendide travi in legno a vista e da una luminosità naturale che lo rende particolarmente piacevole. Questo spazio, grazie alla sua versatilità, può essere adibito a diversi utilizzi: potrebbe diventare una suggestiva zona pranzo, un comodo soggiorno, uno studio privato o anche una terza camera da letto, a seconda delle esigenze personali di chi lo abiterà. La posizione centrale, unita alla distribuzione funzionale degli spazi, rende questo appartamento una soluzione molto interessante, ideale sia come abitazione principale per chi desidera vivere nel cuore della città, sia come ottimo investimento da mettere a reddito.














