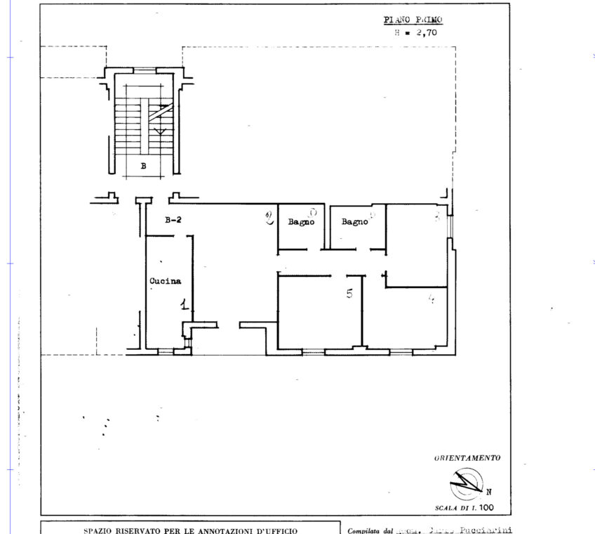
In zona tranquilla e ben servita, proponiamo in vendita un ampio appartamento di circa 100 mq, posto al piano primo di una palazzina curata.
L’abitazione è composta da ingresso, cucina semi abitabile, luminoso soggiorno con balcone, tre camere da letto e due bagni, ideali per garantire comfort e funzionalità a tutta la famiglia.
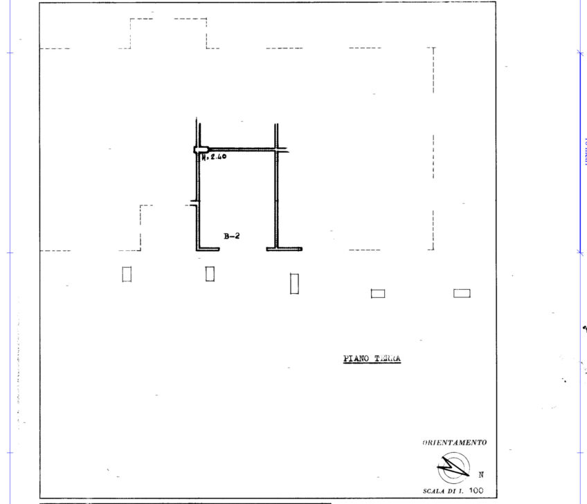
Completano la proprietà un garage al piano terra di mq 20, perfetto per parcheggiare in sicurezza o come comodo spazio di deposito.
L’immobile si presenta come soluzione ideale per chi cerca spazi ampi e ben distribuiti, in un contesto residenziale sereno ma vicino ai principali servizi.




































