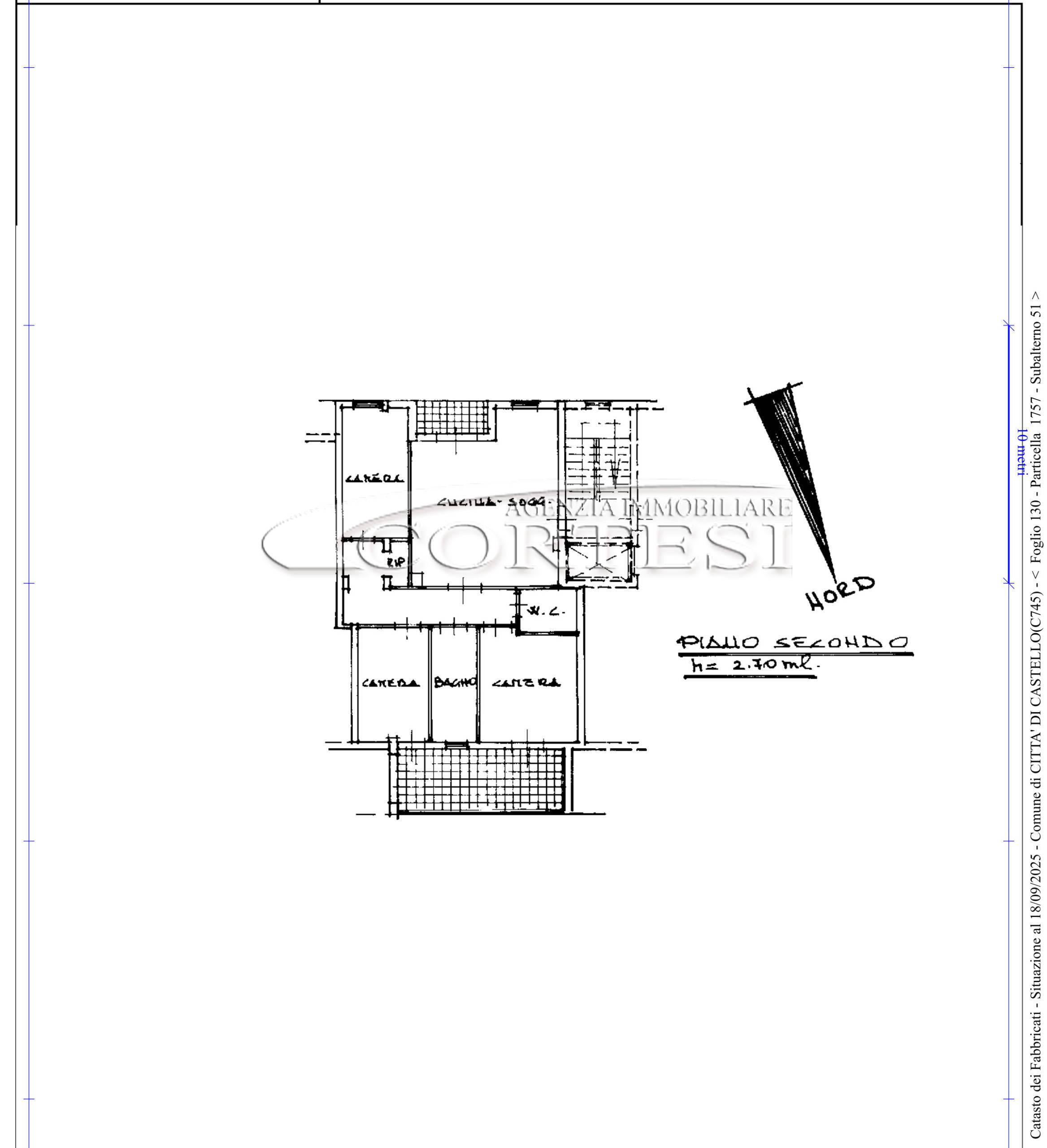
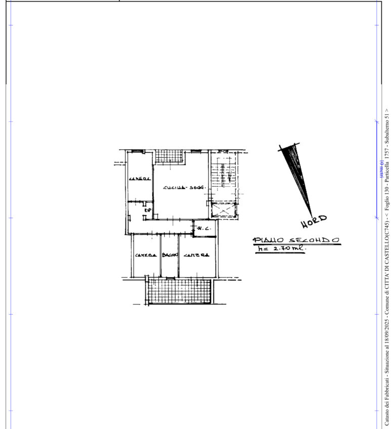
In contesto residenziale di recente costruzione, proponiamo in vendita luminoso appartamento di 110 mq, posto al secondo piano servito da ascensore.
L’immobile si compone di un ampio soggiorno con angolo cottura, caratterizzato da una splendida luminosità e accesso diretto a un comodo balcone, ideale per pranzi all’aperto o momenti di relax.
La zona notte comprende tre camere da letto, due bagni (di cui uno finestrato), ripostiglio e un ampio terrazzo, perfetto per godere di uno spazio esterno riservato e vivibile.
Completano la proprietà un garage di 22 mq, ideale per auto e ulteriore spazio di deposito.
Soluzione perfetta per famiglie o per chi è alla ricerca di ampi spazi in una zona tranquilla e ben servita.


































