Nella tranquilla e ben servita zona di Verna, all’interno di un complesso residenziale, a breve distanza dai principali servizi e dalle principali vie di collegamento, proponiamo in vendita un appartamento di recente costruzione, ideale sia come abitazione principale sia come investimento.
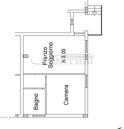
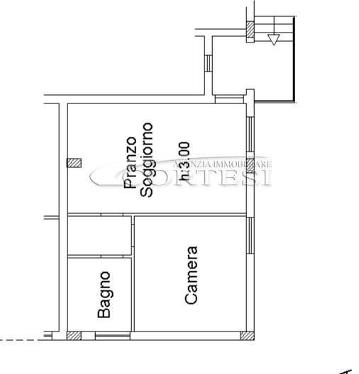
L’immobile, dotato di ingresso indipendente e situato al piano rialzato, si presenta in ottime condizioni ed è composto da un ampio e luminoso soggiorno con stufa e cucina a vista, una spaziosa camera matrimoniale, disimpegno e un bagno con doccia.
La proprietà viene venduta completamente arredata, pronta per essere abitata fin da subito.
Soluzione interessante per chi è alla ricerca di comfort, indipendenza e di un ottimo potenziale di rendimento.












